Click on the image to add
a tag or press ESC to cancel
a tag or press ESC to cancel
loading google map....
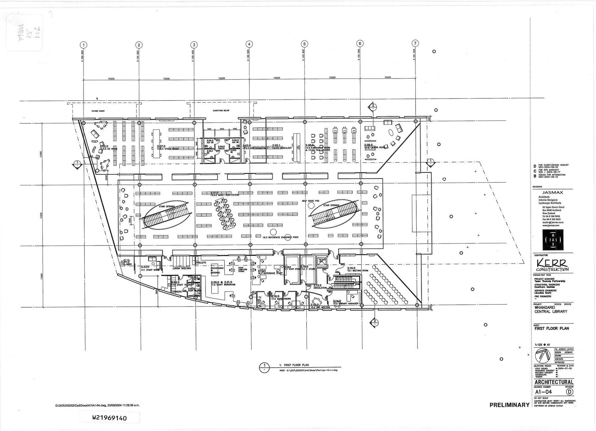
First Floor Plan Whangarei Central Library 01. Northland Room Digital Collections, accessed 04/04/2026, https://wdc.recollect.co.nz/nodes/view/2191







